Skip to content

Future Plans

Our journey towards a tangible, year-round location

From a permanent location to transitional housing, WATTS is working towards doing more to end homelessness in Winchester, Frederick County, and Clarke County.

Click on the Phases to learn more.

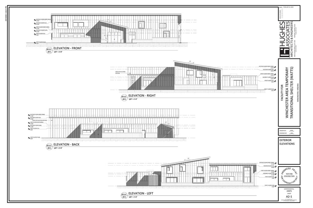
Future Plans: Phase 1

WATTS has been working for several years towards our goal of a permanent, year-round shelter that would allow us to better serve local men and women who are experiencing homelessness.
Read More

Future Plans: Phase 2

Following the completion of our permanent year-round shelter, WATTS would like to focus on Phase II of our vision, which is transitional housing. Shelters are an essential first step to
Read More
×

Support WATTS year-round!

Just $10 a month can change the life of someone experiencing homelessness in Winchester, Frederick, and Clarke County.